1、燃料特性
柴油、重油、轮胎油、生物柴油、渣油均属燃料油,
燃料油的发热量很高,一般为40000~42000kJ/kg。它的燃烧温度高,火焰的辐射能力强。相对于柴油重油有以下特点:
(1)黏度低。以便于管道输送,有利于喷吹雾化改善燃烧效率;重油因含石蜡量多而黏度大,使用时需进行预热,使达到100℃或100℃以上,以降低黏度。
(2)凝固点要低。一般重油凝固温度为22~36℃;对石蜡量多,凝固点高的重油,应采取适当的加热措施,以便于运输和装卸。
(3)闪点温度高。可采用较高的预热温度,便于输送和雾化,一般重油的闪点在180~330℃,都高于需要预热的温度。
(4)油中的机械杂质和含水量要少。杂质多和含水量高,不仅降低了重油的发热量,而且使用时会引起烧嘴堵塞和火焰波动,故需进行过滤,可以改善燃烧效果。
(5)含硫要低。一般含硫量为0.15%~0.30%,但也有少数重油含硫高达2%,使用中造成不良后果。
生物柴油是典型的“绿色能源”,具有环保性能好、发动机启动性能好、燃料性能好,原料来源广泛、可再生等特性。燃烧生物柴油后碳氢化合物都减少55%~60%,颗粒物减少20%~50%,CO减少45%以上,多环芳烃减少75%~85%。生物柴油是指植物油(如菜籽油、大豆油、花生油、玉米油、棉籽油等)、动物油(如鱼油、猪油、牛油、羊油等)、废弃油脂或微生物油脂与甲醇或乙醇经酯转化而形成的脂肪酸甲酯或乙酯。具有某种结构符号的脂肪酸甘油酯(即甘油三酸酯)的植物油和动物脂肪通常被作为生物柴油的原料。
甲醇柴油:柴油、甲醇、添加剂按照一定的体积或质量比经过严格的流程调配而成的新型环保清洁燃料。清洁甲醇柴油是国标轻柴油中按体积或重量比加入一定比例(15%,50%,90%)的变性燃料甲醇配制而成的一种环保节能燃料。甲醇柴油其外观为接近于柴油的澄清透明液体,粘度、热值等指标均接近柴油,可替代柴油使用于工业锅炉、灶炉等领域。
2、系统优点
(1)控制系统采用电子比调,燃烧配比可根据燃料特性,做自由调整。
(2)采用**的微爆雾化喷枪:其雾化效果大大优于常规机械雾化喷枪和介质雾化喷枪。火焰温度比常规喷枪高300℃,可减少能耗7~15%,节能**。因其压力低、喷孔大的特点不存在杂质阻塞油孔的问题,工作稳定**、且使用寿命长。
(3) 系统可选配PID温度控制的大功率燃油加热器,保证来油温度满足良好流动性的要求,解决了渣油罐温度远高于闪点带来的不**隐患和轻组分燃油的挥发损失。
(4)油量调节比大于10:1(常规机械雾化喷枪仅为4:1),不仅有效的提高了温度控制的范围,而且保证了点火的**性。
(5)使用寿命长:由于中小出力时油泵、风机均以很低的转数运行(油泵、风机采用变频控制)。大大减小了电机的温升和机械磨损,从而有效的延长了油泵和风机的使用寿命。
(6)高**性:系统对油压、油温、雾化气压、火焰情况等多种重要参数进行着实时的监控。
(7)高**性:系统还具有多种连续保护功能,启动时点火枪未点着不能喷油,生产中一旦出现再点火失败的故障,本机可以在发出报警的同时自动停止喷油,从根本上清除了爆炸、爆燃事故的发生。
3、适用场景
燃烧系统:广泛用于钢铁厂内的钢包在线/离线烘烤,中间包烘烤、废钢预热和热风炉,工业炉,热风炉、沥青拌合站、锅炉等。中威公司负责设计及系统集成服务。

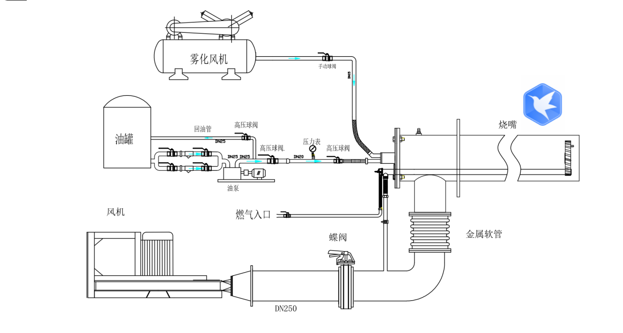
流程示意图



